MENU
HOME
理念
侘助の仕事
まちの不動産や
里山の暮らし
株式会社侘助とは
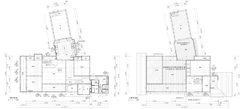
白鷹町空家バンク 売買 1,850万円
●所在地:黒鴨 ●建物:332.904㎡(100.728坪) ●構造:木造二階建 ●学区:鮎貝小・白鷹中 ●水道:上水道
情報提供日:2025/11/19 次回更新予定日:2025/12/3
外観
玄関
廊下
縁側
メイン和室
囲炉裏
カウンター
和室2
和室3
キッチン
蔵の入り口
檜風呂
浴室の灯
洗面前廊下
トイレ入り口
2階へ
2階和室
梁